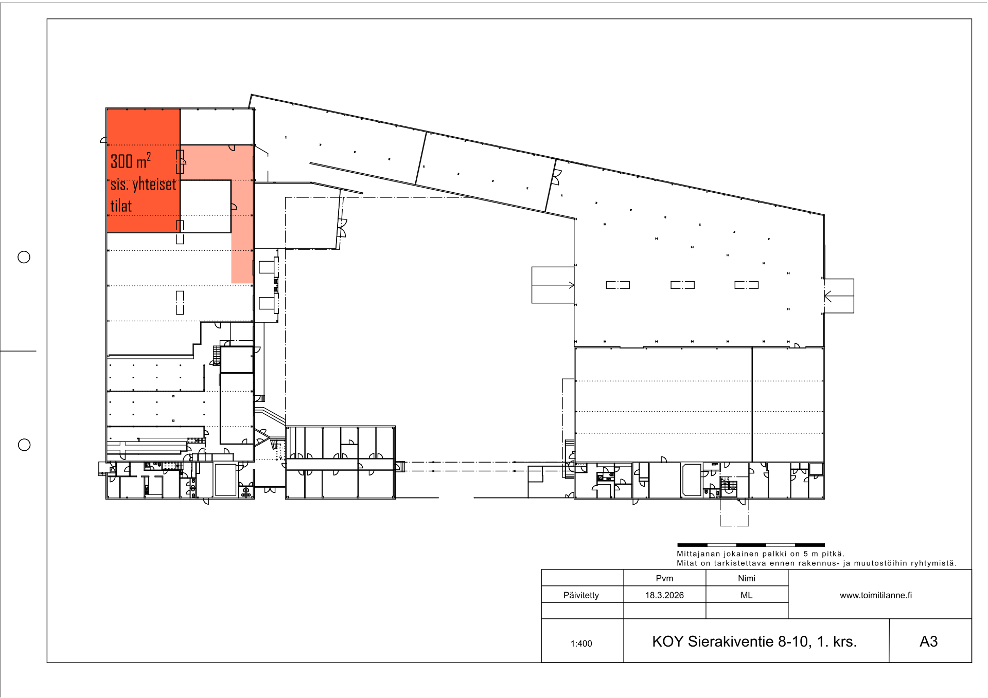
Varastotila 300 m², Espoo
Tila jaettu väliseinin kuvan ottamisen jälkeen.
| Sijainti | Toimitilanne Suomi, Espoo - Kauklahti |
| Osoite | Sierakiventie 8-10, 02780 Espoo |
| Tyyppi | Varastotila |
| Pinta-ala | 300 m² (sis. yhteiset alueet) |
| Kerros | 1. krs (katutaso) |
| Kulkuyhteys | Nosto-ovet |
| Sähkö | Voimavirta |
| Vesi | |
| Wc | |
| Vapautuminen | Heti vapaa |
| Muuta | Lastauslaituri, sisäänajo |
Vuokrataan varastohalli
Vuokrattavan korkean varastohallin vapaa korkeus on 5 m. Kuormalavahyllyt valmiina. Nosto-ovet ja lastauslaituri. Sisäänajomahdollisuus pakettiautolle. Tarvittaessa tiloja voi käyttää myös tuotantoon.
Hyväkuntoinen ja monipuolinen toimisto- ja varastokiinteistö on valmistunut 1980-luvulla Espoon Kauklahteen. Kiinteistö sijaitsee hyvien kulkuyhteyksien varrella: Kehä III, Turunväylä, Hangontie. Kauklahden juna-asemalle on 900 metrin matka. Lisätietoa kiinteistöstä.
Ota yhteyttä: Björn Lindgren, p. 041 581 8560.
