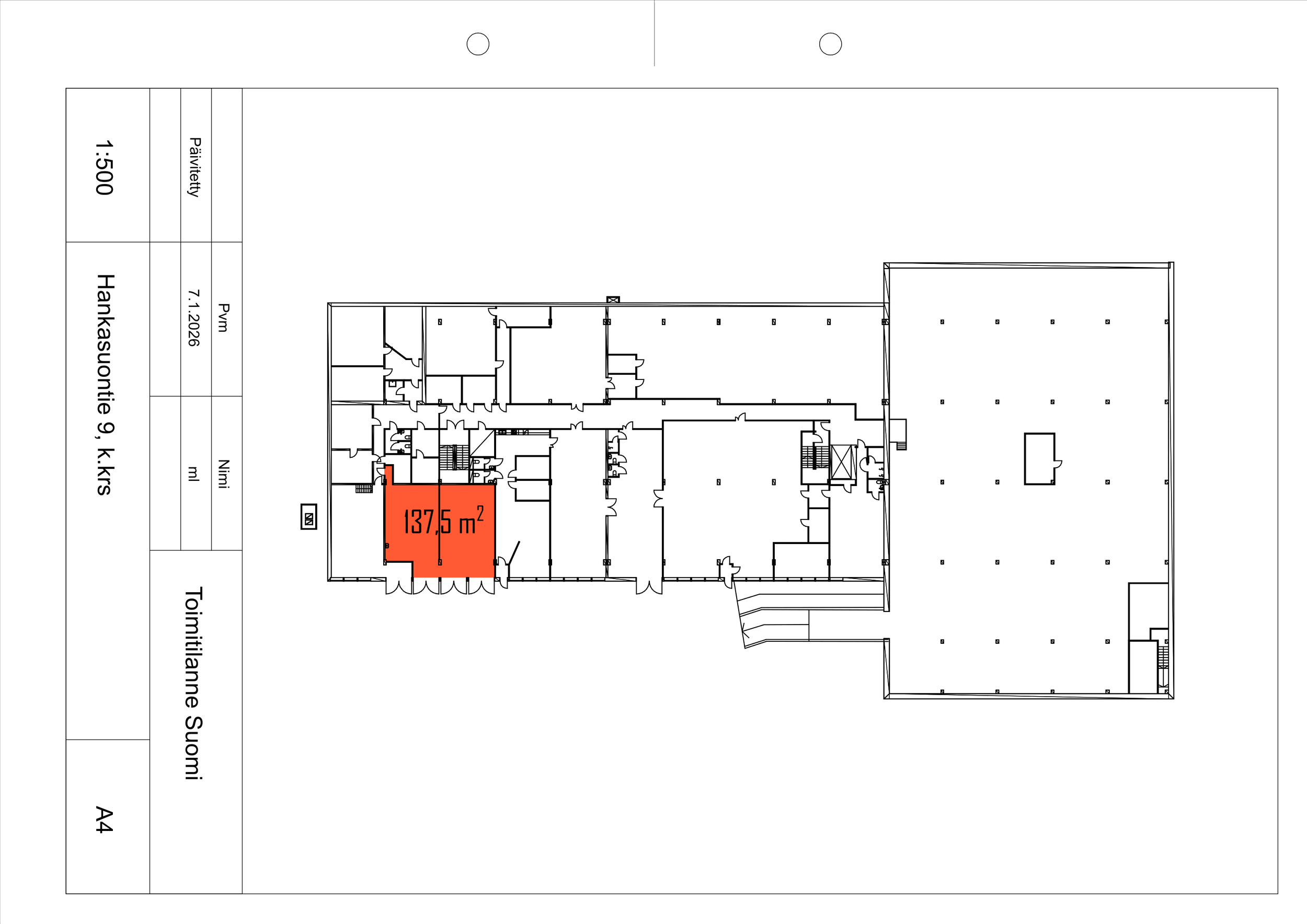
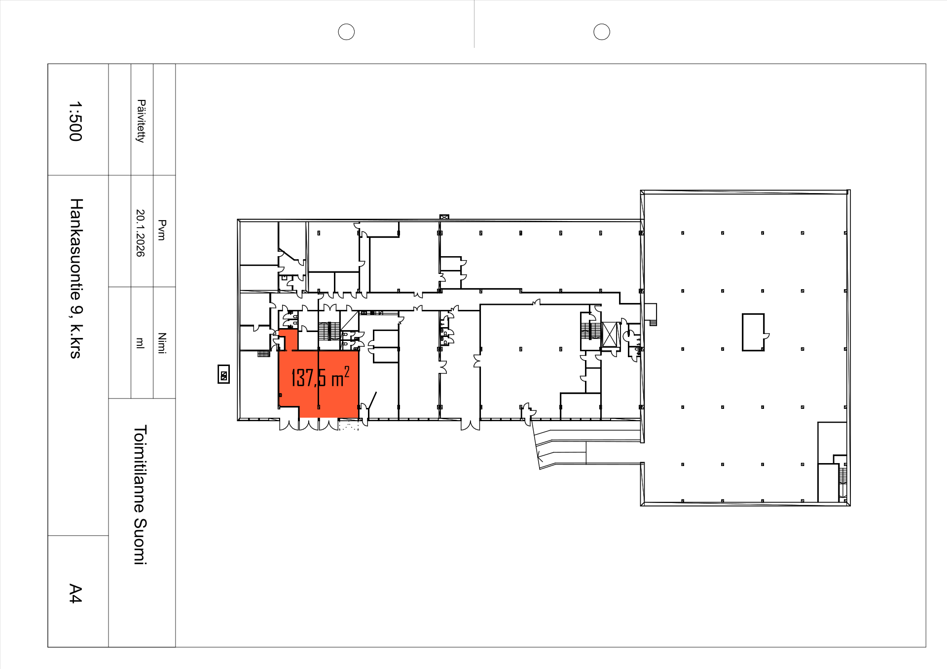
Tuotanto- tai Varastotila 137,5 m², Helsinki
| Sijainti | Toimitilanne Suomi, Helsinki - Konala |
| Osoite | Hankasuontie 9, 00390 Helsinki |
| Tyyppi | Varastotila, tuotantotila |
| Pinta-ala | 137,5 m² |
| Kerros | kellarikrs |
| Kulkuyhteys | pariovet pihalta |
| Sähkö | valovirta |
| Vesi | ei |
| Wc | yhteiskäytössä |
| Vapautuminen | heti vapaa |
| Muuta |
Vuokrataan kahdesta vierekkäisestä tilasta koostuva varasto sekä pieni toimistohuone rakennuksen alimmasta kerroksesta. Tilojen välillä pääsee kulkemaan myös sisäkautta. Kumpaankin tilaan oma pariovi suoraan pihalta.
Tila ei sovellu autopesu- tai korjaamotoimintaan.
Kiinteistö sijaitsee Vihdintien tuntumassa vilkkaalla Hankasuontien teollisuus- ja yritysalueella. Lisätietoa kiinteistöstä.
Tatu Hyvärinen, tatu.hyvarinen@toimitilanne.fi, p. 040 145 7845.

