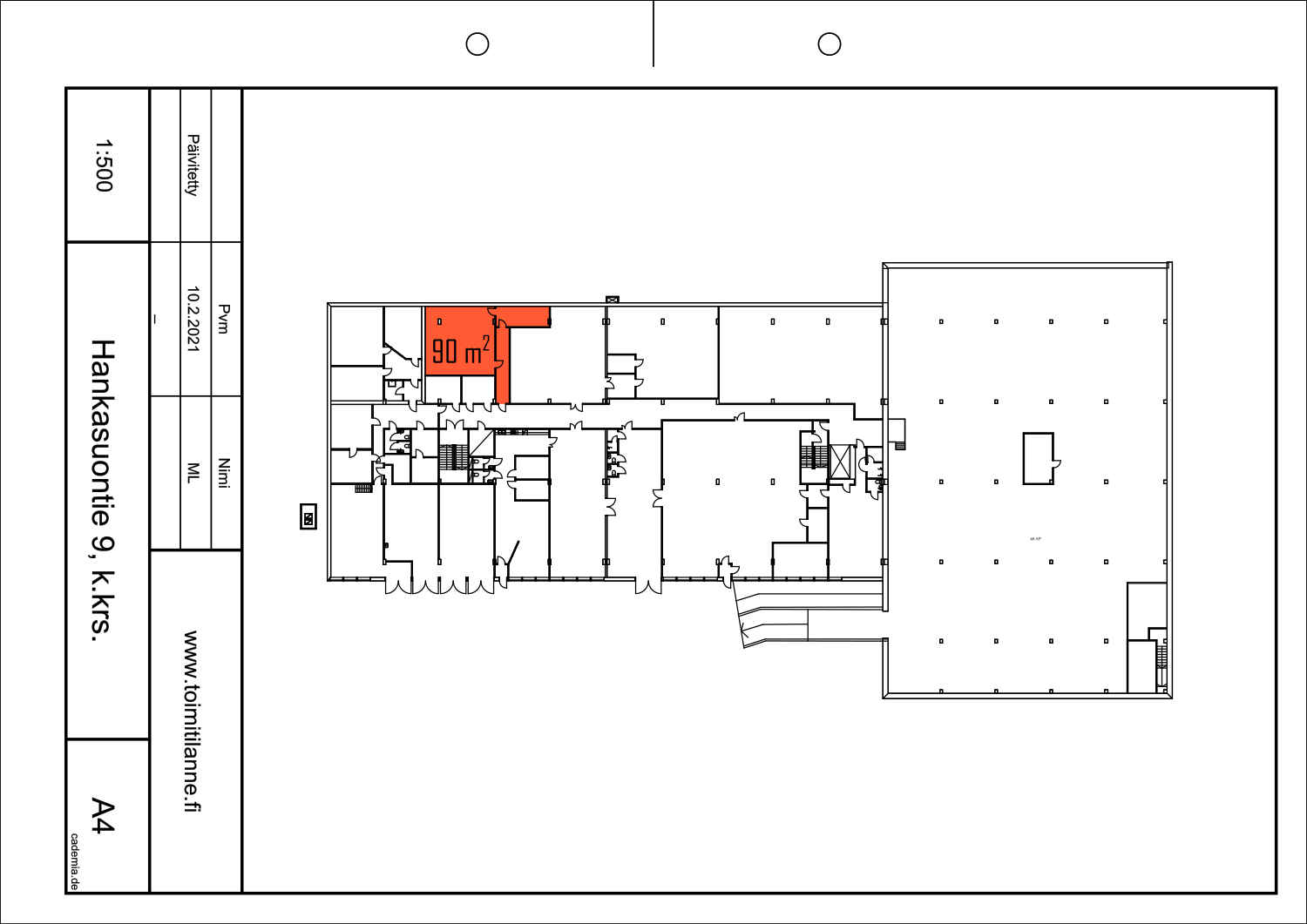
Varastotila 90 m², Helsinki
| Sijainti | Toimitilanne Suomi, Helsinki - Konala | 
| Osoite | Hankasuontie 9, 00390 Helsinki | 
| Tyyppi | Varastotila | 
| Pinta-ala | 90 m² | 
| Kerros | kellarikrs. | 
| Kulkuyhteys | käyntiovi, lastausaula | 
| Sähkö | valovirta | 
| Vesi | ei | 
| Wc | yhteiskäytössä | 
| Vapautuminen | 1.4.2026 | 
| Muuta | 
Vuokrataan siisti varastotila rakennuksen alimmasta kerroksesta. Kulku tiloihin mm. lastausaulan kautta. Lisäksi erillinen varastohuone, jonne pääsy suoraan päätilasta tai omassa käytössä olevan käytävän kautta.
Varasto ei sovi bänditilaksi.
Kiinteistö sijaitsee Vihdintien tuntumassa vilkkaalla Hankasuontien teollisuus- ja yritysalueella. Lisätietoa kiinteistöstä.
Tatu Hyvärinen, tatu.hyvarinen@toimitilanne.fi, p. 040 145 7845.

 
             
                 
                 
                 
                